Metzinger Miteinander
In der Nürtinger Straße haben wir seit Jahren ein Mehrfamilienhaus mit typischen nestbau-Merkmalen geplant. Und wahrscheinlich einer Inklusions-WG. Jetzt soll das Projekt endlich Fahrt aufnehmen. Dazu überarbeiten wir zugleich die immer noch stimmige Grundkonzeption hin zu noch innovativeren und flexibleren Wohnungslayouts.
- So bezahlbar wie im Neubau eben irgend möglich. Ob und wieviele Sozialwohnungen für Menschen mit Wohnberechtigungsschein integriert werden, prüfen wir gerade intensiv.
- Kluge, flexible Grundrisse, damit Lebenslaufwohnen möglich wird.
- Vielleicht bekommen auch alle Wohnungen zusammen einen Gemeinschaftsraum, vielleicht auch eine bislang noch nicht geplante Dachterrasse?
Sozialer Mehrwert und vielfältige Wohnungstypen...
die es sonst am Wohnungsmarkt kaum gibt:
- u.a. mit einer inklusiven WG im Erdgeschoss.
- Diese könnte aber auch zu einer Cluster-Wohnung umgestaltet werden.
- Ein weiterer Cluster wäre im Geschoss darüber möglich.
- Aber auch das Modell Hausgemeinschaft mit einem geteilten Gemeinschaftsraum (ggf. auf andrer Etage) wäre machbar.
- Und viele der kleineren Wohnungen könnten paarweise zusammengeschaltet werden.
- Denkbar sind zudem einzelne Flex- oder Schaltzimmer.
- Wahrscheinlich werden auch einige "Sozialwohnungen" für Menschen mit Wohnberechtigungsschein integriert.
Grundrisse, Wohnungstypen und Sozialformen des Wohnens hängen also eng zusammen - wir wollen hier ein Haus der ganz vielen Möglichkeiten bauen. In dem auch künftig Spielraum für Nutzungen besteht, die wir momentan vielleicht noch gar nicht sehen:
- Mitarbeitenden-Wohnen: Wenn Arbeitgebende kommen und sagen: Wir brauchen für unsere Sozial- oder Pflegekräfte dringend Wohnungen... sind wir dafür offen
- "Wohnen für Hilfe": Wenn eine Initiative mit uns ein "MixAge"-Arrangement machen möchte... lasst es uns anschauen: Da wohnen bspw. 5 ältere Leute im Cluster im 1.OG (s.u.) zusammen, in zwei Mitarbeitenden-Wohnungen dagegen Pflegekräfte, die sagen: wir würden gerne verbindlich Unterstützung für die Älteren anbieten, wenn diese uns durch eine Umlage eine Mietverbilligung schaffen könnten...
-
24-h-Betreuungskraft: Wenn eine solche im Haus gebraucht würde, könnte sie eines der Appartements bekommen.
Dies Projekt musste wegen des KfW-Förderstopps im Januar 2022 finanziell auf den Prüfstand gestellt werden. Eine Baugenehmigung liegt vor. Bis September 2025 war noch ein Widerspruchsverfahren zu klären - nun ist klar: die Baugenehmigung war rechtens.
Inklusives Wohnen...
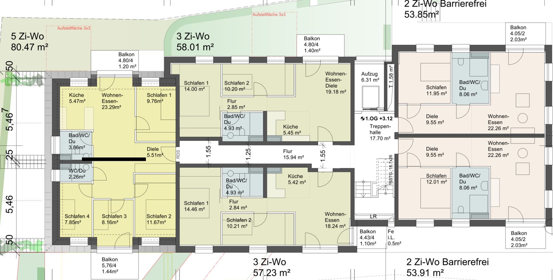
Die inklusive Wohngemeinschaft könnte 6 junge Menschen mit und ohne Einschränkungen gemeinsam beherbergen.
- Was heißt inklusives Wohnen?
- So könnte der 225-qm-Grundriss für eine 6er-WG im Erdgeschoss aussehen:
- Jede Person hat ihren eigenen Sanitärbereich.
- Alle Bereiche sind barrierearm,
- zwei der Wohneinheiten nach erhöhtem Standard auch für Rollstuhlnutzende.
- Und der gemeinschaftliche Bereich (gelb gepunktet) hätte fast 100 qm (incl. Büro, zzgl. Flur).
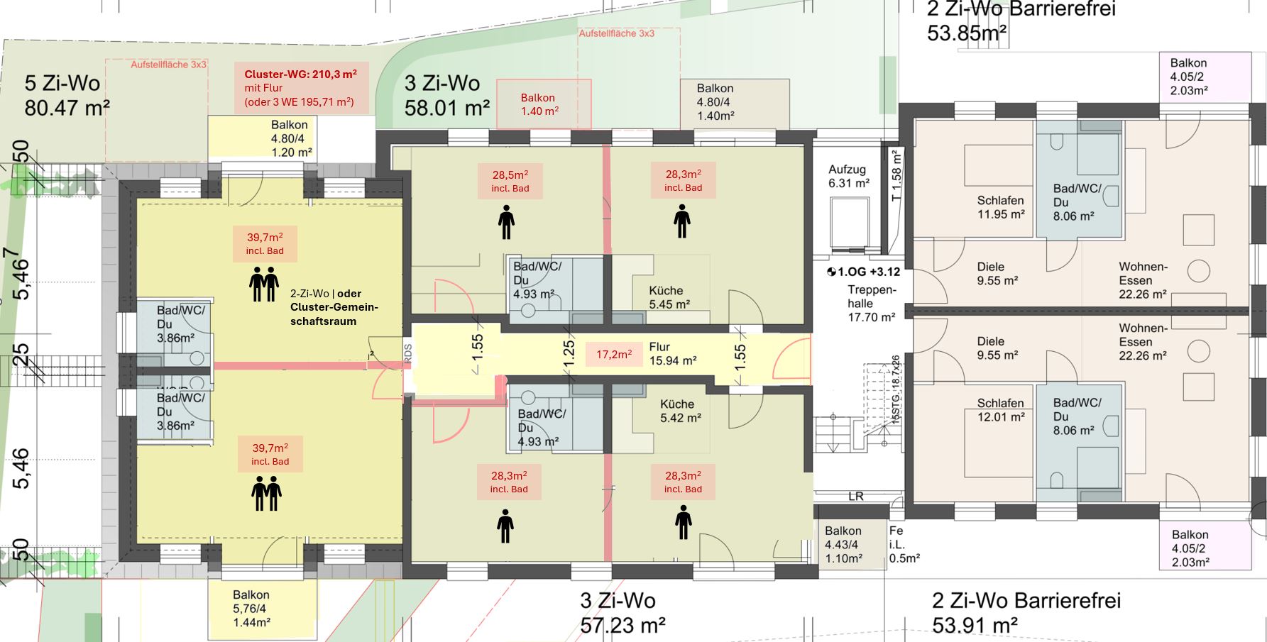
...oder eher Cluster-Wohnen im EG...
- Was heißt Clusterwohnen? Uli Otto hat es vor 3 Jahren einmal für die Neustart eG beschrieben (hier), Jördis Binroth für die nestbau AG (hier).
- So könnte der EG-Grundriss aussehen, wenn er für Clusterwohnen optimiert wird:
- die einzelnen Privatbereiche sind größer: für 4 Einzelpersonen jeweils 28.5 qm, für ein Paar 40-48.5 qm - jeweils mit eigenem Bad (und bei der 2-Personen-WE mit kleinem Balkon).
- Eine je eigene Miniküche ist baulich vorbereitet, kann einfach eingebaut werden - aber das könnten die Bewohnenden entscheiden.
- Der Gemeinschaftsbereich hätte 48,5-57 qm - incl. kleinem Balkon.
- Die Wohnfläche/ Person betrüge ca. 37,5 qm. Das ist ein sehr ordentlicher Wert dafür, dass es ja Personen sind, die sonst wohl in Einpersonen- oder Zweipersonen-Wohnungen leben würden.
- Zur Charakterisierung - was wäre das für ein Cluster? Es ist eine eher geringe Personenanzahl. Die Wohnflächen in den Privatbereichen sind ziemlich zurückhaltend, aber noch nicht im extrem niedrigen Bereich. Genauso gilt dies für den Gemeinschaftsbereich, der ebenfalls gut nutzbar, aber nicht über-üppig ist.
...und/oder Clusterwohnen im 1. OG?
Bislang waren im Hausteil links des Treppenhauses drei "normale" Wohnungen vorgesehen:
Daraus könnte - so wie im EG auch - ebenso eine Clusterwohnung entstehen. Dazu könnte bspw. die südwestliche Wohneinheit als Gemeinschaftsbereich genutzt werden. Für die Individualwohneinheiten gilt fast alles wie im EG (s.o.). Allerdings hätten im 1. OG bis auf eine einzige sogar alle einen eigenen kleinen Balkon. Der Gemeinschaftsbereich und die "Paarwohnung" wären geringfügig kleiner aufgrund der schrägen Wände im südöstlichen Hausteil.
Projekthistorie und -status
Das Grundstück wurde 2020 von der nestbau AG gekauft. Im Oktober 2021 haben wir mit den Plänen des Tübinger Büros AW Architektenwerkgruppe das Baugesuch eingereicht und die Baugenehmigung im Herbst 2022 erhalten.
Nachdem nun längere Zeit ein Rechtsstreit jegliche Verwirklichungsabsichten ausgebremst hatte, besteht seit September 2025 endlich Klarheit: dies sinnvolle Vorhaben mit rund 1.000 m² bezahlbarem Wohnraum und inklusive Inklusionswohnen könnte nun verwirklicht werden.
Alles andere als ein Schema-F-Bau:
Das lässt erstmalig wieder Alternativen in den Blick kommen - wir prüfen sie nun sorgfältig:
- Status quo beibehalten - als eine Brache, die zwar eine ganz frisch wieder gültige Baugenehmigung hat, aber derzeit nur zur Parkierung von Autos genutzt wird?
- Grundstück mitsamt genehmigter Planung einfach verkaufen? - sicher: das zahlt hochwillkommen in Sachen nestbau-Liquidität ein. Aber darüber hinausgehend auf keines unserer Gemeinwohlziele. Und bestenfalls indirekt auf unsere strategisch gesetzten Aktivitäten.
- Projektentwicklerin für Vor-Ort-Akteurin werden - das wäre Stand heute die interessanteste Option - aber nicht gerade trivial: Wir wären - wie in Unterjesingen - erstmal tatkräftiger und mitreißender Inkubator für eine Vor-Ort-Initiative. Wir würden eine umfassende Projektentwicklung entfalten - Bauherrin aber wäre die Initiative, in welcher (Gemeinwohl-) Rechtsform auch immer. Während der Bauphase würden wir die Projektsteuerung ausüben, während der Wohnphase ggf. auch die Hausverwaltung.
Was passiert aktuell?
Vor allem wollen wir möglichst rasch und belastbar rausbekommen, ob und wie die Option 3 wirklich umgesetzt werden könnte:
- Aktuell nutzen wir - angetrieben von Uli Otto, wie beispielsweise auch im Unterjesinger Genossenschaftsprojekt - unsere exponierte Expertise in Sachen innovative Wohntypologien zu einem gründlichen Check: könnte das Haus nicht noch deutlich mehr, als schon bisher konzipiert? Und tatsächlich: es könnte! Vor allem in Sachen
- gemeinschaftliches Wohnen und
- flexible Anpassbarkeit im Lebenszyklus von Haus und Menschen (s.o.).
- Sehr knapp ist bislang auch die Balkonfläche. Wir sondieren gerade mit den Architekten, ob ggf. noch eine haus-gemeinsame Dachterrasse realisiert werden könnte und die Balkonflächen insgesamt noch vergrößert werden könnten....
- Dabei kommt es sicher zur Nagelprobe in Sachen Bauturbo und Bürokratie-Abbau: Fast alle o.g. Flexi-Optionen könnten am Heilix-Blechle scheitern - die Landes-Stellplatzverpflichtung fordert "für 1 Wohnung 1 Parkplatz".
- Völlig aus der Zeit gefallen, aber in Metzingen noch gültig. Indes: wir sind bereits mit der Bauverwaltung im Gespräch und waren angetan von deren prinzipieller Aufgeschlossenheit.
- Dabei wollen wir - so ists mit dem Baubürgermeister abgesprochen - auch eine sehr weitgehende Lösung durchprüfen: Funktioniert möglicherweise gar ein Verzicht auf die so unglaublich teure Tiefgarage? Die nicht nur über 100 qm mögliche Wohnfläche kostet. Sondern deren Zufahrt auch viel mehr Versiegelung bedeutet und auf dem engen Grundstück mit seiner etwas verbauten Nachbarschaft dringend nötige Grün- und Baumflächen verhindert.
- Ein starker Hebel raus aus der Tiefgaragen-Kostenfalle könnten von uns bereitgestellte teilAutos sein. Die Idee beschreiben wir hier.
Das ist die bisher geplante sündhaft teure Tiefgarage im Metzinger Haus - sie macht uns gar nicht glücklich... ob wir sie wegbekommen?
Mitmacher_innen herzlich eingeladen!
Wir suchen den Kontakt mit allen Personen und Initiativen, die an so einem Haus interessiert sind -
- z.B. als spätere Bewohnende.
- Oder als Gruppe, die Clusterwohnen anstrebt.
- Oder als Sozialträger oder Einzelperson oder Kleingruppe, die gern mit uns ein Mix-Age-Wohnen entwickeln wollen.
- Oder als Menschen, die gerne das Projekt mit auf den Weg bringen wollen, ggf. auch mit solidarischem Geld.
Artikel im Reutlinger Generalanzeiger vom 27.11.2025
Bericht von der Kickoff-Veranstaltung vom 01.12.2025



